Highgate Garden Design (Contemporary London Outdoor Living Space)

Client Type: Developer

Location: North London

Site Scale: Medium

Scope of Work: Concept Design and Detailed Planning

  • Project Overview

    In the heart of Highgate, N6, this compact garden was transformed into a multi-functional outdoor living space for a busy family. The brief called for a dog-friendly, low-maintenance design with distinct zones for dining, lounging, entertaining, and play—delivered through a layered, contemporary layout.

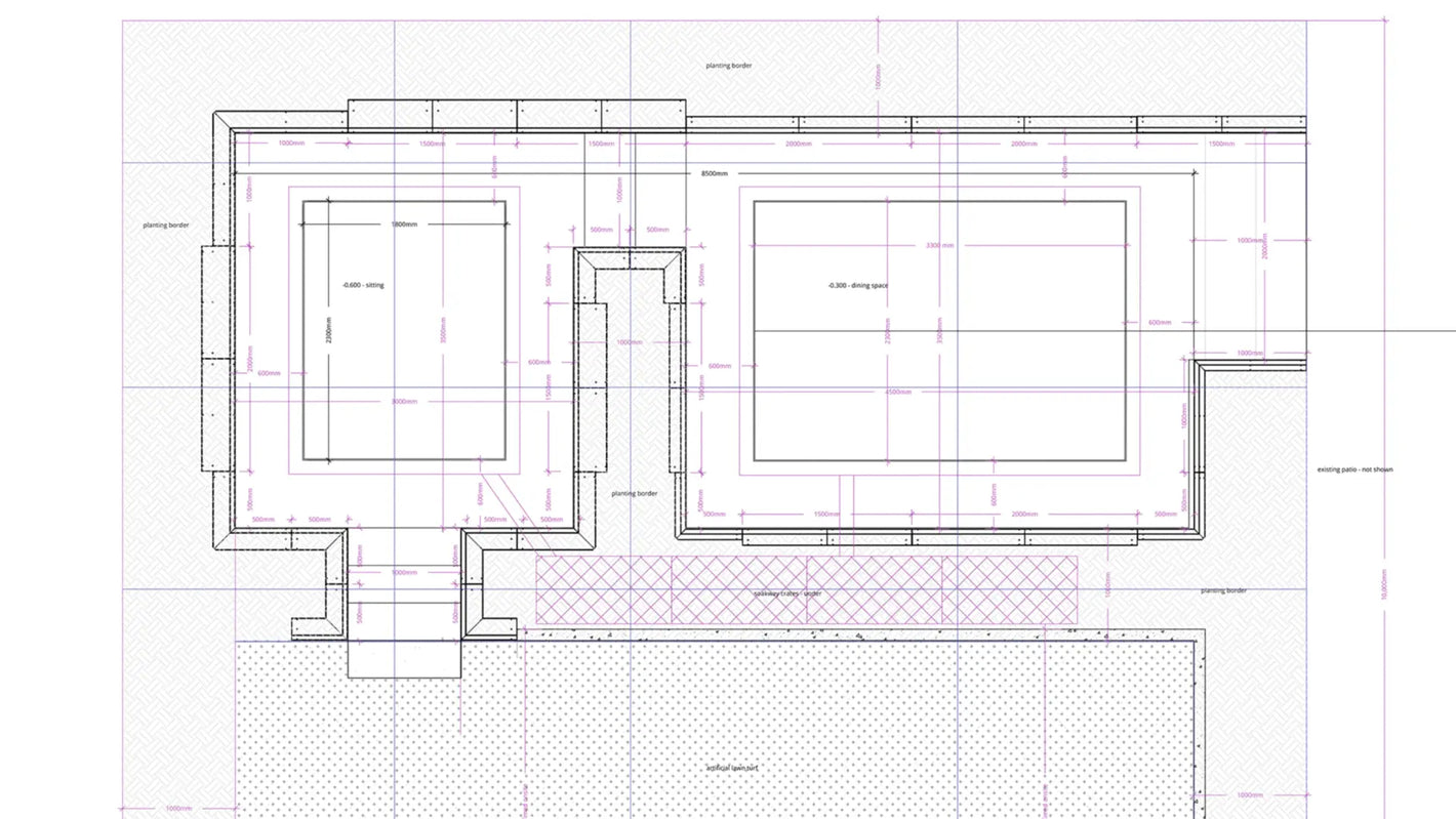
  • Spatial Strategy: Outdoor Rooms

    A zoning-led approach created a series of outdoor “rooms,” each with its own function and character. Subtle level changes (300mm and 600mm drops) introduced spatial depth and allowed for integrated structural elements like retaining walls and drainage systems, avoiding a flat, monotonous layout.

  • Materials and Features

    A refined, modern palette was used throughout:

    • Porcelain paving in soft neutrals for durability and clean lines
    • Corten steel pergola with lattice detailing for seasonal planting and shade
    • Rendered walls, LED lighting, and cedar fencing to define and frame spaces
    • Waterfall feature aligned with the main view for sound, movement, and reflection
    • Custom furniture and layered planting for texture and comfort
  • Family and Pet-Friendly Design

    The garden balances aesthetics with everyday practicality. A resilient event lawn supports active use, while all planting is non-toxic and dog-safe. Circulation paths and boundaries were designed for ease of movement. A shaded dining area for 8–10 guests and a sunken lounge with fire pit support year-round family gatherings.

  • Technical Detailing and Sustainability

    Full construction drawings ensured precision in execution, including step profiles, wall elevations, and drainage layouts. Groundworks were carefully managed to comply with SuDS guidelines, incorporating a soakaway system to handle rainwater responsibly without impacting neighbouring properties.

  • Outcome

    This project exemplifies how thoughtful landscape design can deliver high impact in a compact footprint. The result is a serene, functional, and visually cohesive garden that enhances daily life and reflects the essence of contemporary outdoor living in North London.

     
     

    Featured on

     
     

    Get in Touch

    Whether you're ready to start a project or just exploring ideas, we’d love to hear from you. Email us directly or use the contact form to share a few details—our team will respond promptly.

    Contact form